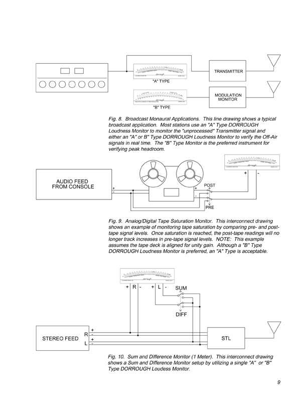
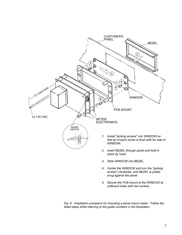
DORROUGH
MODEL 40-AB